北京弘鑫雅居建筑装饰工程有限公司欢迎您!
手机版
网站首页
关于我们
企业简介
宣传视频
经典案例
简约风格
欧式风格
中式风格
北欧风格
美式风格
地中海风格
设计团队
设计精英
服务流程
新闻资讯
公司新闻
行业动态
装修知识
在线服务
网上预约
在线留言
招贤纳士
联系我们
当前位置:
网站首页
>>
经典案例
>>
中式风格
>>
查看详情
经典案例
简约风格
|
欧式风格
|
中式风格
|
北欧风格
|
美式风格
|
地中海风格
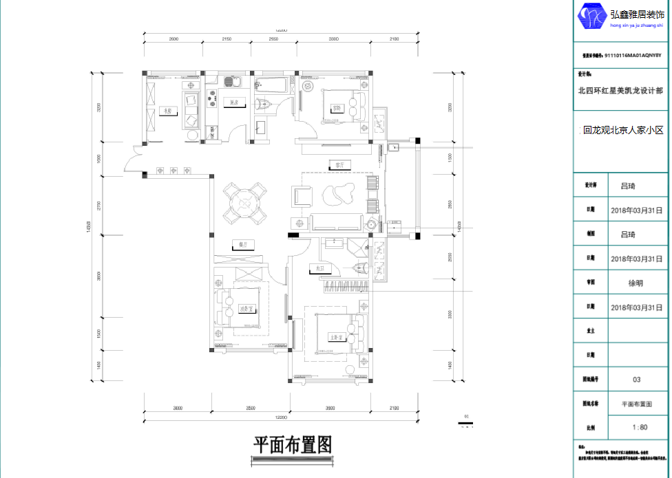
北京人家新中式【吕琦设计师】
来源:
北京弘鑫雅居建筑装饰工程有限公司
日期:
2019-04-19 09:49:06
点击:
1747
属于:
中式风格
一、设计说明
设计师:吕琦
风格:新中式
费用:19万
地址:北京人家
设计过程中的重点是现代和古典如何融合以及它们各占的比例。设计师努力营造出一个开放的空间形态,让各种设计元素(如中式韵味的窗花、书法、诗词、石材和现代的玻璃、不锈钢等元素)都可以有机的融入进来,同时精确把握中式元素所占比例,让中式元素成为主体,但不至于占统治地位,争从一个全新的角度去诠释中式风格的神韵。
上一:
松榆里中式风【马杰设计师】
下一:
上城郡新中式【吕琦设计师】
网站首页
关于我们
企业简介
宣传视频
经典案例
简约风格
欧式风格
中式风格
北欧风格
美式风格
地中海风格
设计团队
设计精英
服务流程
新闻资讯
公司新闻
行业动态
装修知识
在线服务
网上预约
在线留言
招贤纳士
联系我们
联系人:
徐经理 手机:18911075923
电话:
010-80743470
邮件:
xuming0706@126.com
网址:
http://www.hongxinyaju.com
地址:
北京市昌平区回龙观龙祥制版工业园2号院3号楼202
北京弘鑫雅居建筑装饰工程有限公司
版权所有2021-2026
京ICP备19012507号-1